


















Diese barrierefreie und wunderschöne Neubauwohnung liegt in ruhiger und sehr bevorzugter Höhenlage, am Ortsrand von Hirschhorn. Sie wird gerade für den Erstbezug fertiggestellt und verfügt über insgesamt ca. 62,26 m² Wfl.
Sie befindet sich im 2.Obergeschoss eines 6-Parteien-Wohnhauses. Das Haus ist mit einem Personenaufzug ausgestattet.
Der gut durchdachte Grundriss, helle freundliche Räume, allesamt barrierefrei und die hochwertige und moderne Ausstattung sind nur einige Vorteile, die diese Wohnung zu Ihrem Wohntraum machen.
Besonders reizvoll ist der überdachte Balkon mit herrlichem Schloss- und Neckarblick für gemütliche und erholsame Stunden im Freien.
Ihr Fahrzeug kann trocken und komfortabel in der Garage mit eigenem Stellplatz geparkt werden.
Ihre Fahrräder finden in einem Fahrradabstellraum Platz. Ebenso steht ein Waschraum mit Waschmaschinenanschluss im Keller zur Verfügung.
Ein separater und abschließbarer Kellerraum ist bereits im Mietpreis enthalten.
Die Beheizung erfolgt über eine Pellet-Zentralheizung (Fußbodenheizung) sowie eine Wärmepumpe.
Die Fenster sind dreifach-isolierverglast mit elektrischen Rollläden.
Eine moderne und praktische Video-Gegensprechanlage ist vorhanden.
Lassen Sie sich dieses einmalige Angebot nicht entgehen und überzeugen Sie sich selbst. Ich freue mich auf Ihren Anruf!
Diese barrierefreie Neubauwohnung liegt in ruhiger und bevorzugter Ortsrandlage von Hirschhorn. Wohnen wo andere Urlaub machen! Hirschhorn (Neckar) ist eine Landstadt im südhessischen Kreis Bergstraße mit zurzeit ca. 3.500 Einwohnern. Sie liegt im südlichsten Teil des hessischen Odenwald und gilt auch als "Perle des Neckartales" und ist Teil des Geo-Naturparks Bergstraße-Odenwald.
Von Hirschhorn aus erreichen Sie auf gut ausgebauten Straßen oder mit öffentlichen Verkehrsmitteln viele Attraktionen. Egal, ob Sie die Natur suchen oder lieber urban genießen: die Perle des Neckartals ist ein idealer Ausgangspunkt für Ihre Ausflüge in die Rhein-Neckar-Region, den Odenwald und in den Kraichgau.
Auch die zahlreich stattfindenden Veranstaltungen sind Anziehungspunkt für jung und alt. Dabei begegnet dem Besucher häufig Kultur und Brauchtum.
Auch für Familien ist umfangreiche Wohnqualität geboten. Die reizvolle Kleinstadt verfügt neben bestens ausgestatteten Betreuungsplätzen in den Kindergärten und in der Kindertagesstätte über eine Grundschule sowie alle Schulformen in den Nachbarstädten.
Ärzte, Apotheken und Geschäfte des täglichen Bedarfs sind vor Ort. Kurzum: Alles was man zum Leben braucht ist vorhanden.
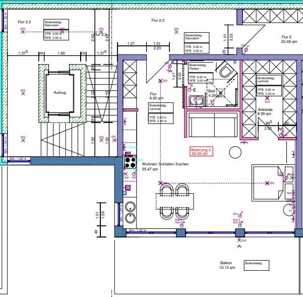
Es erwarten Sie insgesamt 2 Zimmer, aufgeteilt in den großzügigen Wohn-, Ess-, Schlafbereich mit direktem Zugang zum großen, überdachten und sonnigen Balkon, eine offene Küche, 1 Badezimmer, 1 weiteres Zimmer.
Vom Treppenhaus kommend betreten Sie die Wohnung über den großzügigen Flur, welcher ausreichend Platz für Ihre Garderobe bietet.
Das große Wohn-, Ess-, Schlafzimmer mit herrlichen Panoramafenstern ermöglicht den direkten Zugang zum überdachten und sonnigen Balkon für gemütliche und erholsame Stunden im Freien. Der Boden wurde mit Laminat belegt und die Wände sind verputzt und weiß gestrichen.
Die offene Küche ist bereits im Mietpreis enthalten.
Das Tageslichtbad ist mit einer ebenerdigen Dusche, einem Waschtisch und einem WC ausgestattet.
Das Badezimmer ist modern und hell gefliest.
Ein weiteres Zimmer kann beliebig als Schlaf-, Büro-, Ankleide- oder Gästezimmer
genutzt werden. Der Boden ist ebenso mit Laminat belegt und die Wände frisch verputzt und weiß gestrichen.
Wohnfläche ca. 62,26 m²
Baujahr 2020/ Erstbezug
2 Zimmer im 2. Stock
6-Parteien-Haus
Großer überdachter Balkon
1 weiteres Zimmer
1 Badezimmer mit ebenerdiger Dusche, Waschtisch und WC
1 Garagenstellplatz
1 Kellerraum
Fahrradraum
Waschraum
Heizung: Fußbodenheizung, Wärmepumpe, Pellet
elektrische Rollläden
Video-Gegensprechanlage
Energiekennwert: 26,30 kwH, A+
Mietpreis:
Kaltmiete: 610,00.€
Garage: 60,00 €
Nebenkosten: 120,00 €
Warmmiete: 790,00 € inkl. EBK und Tiefgaragenstellplatz
Kaution: 1.830.- €